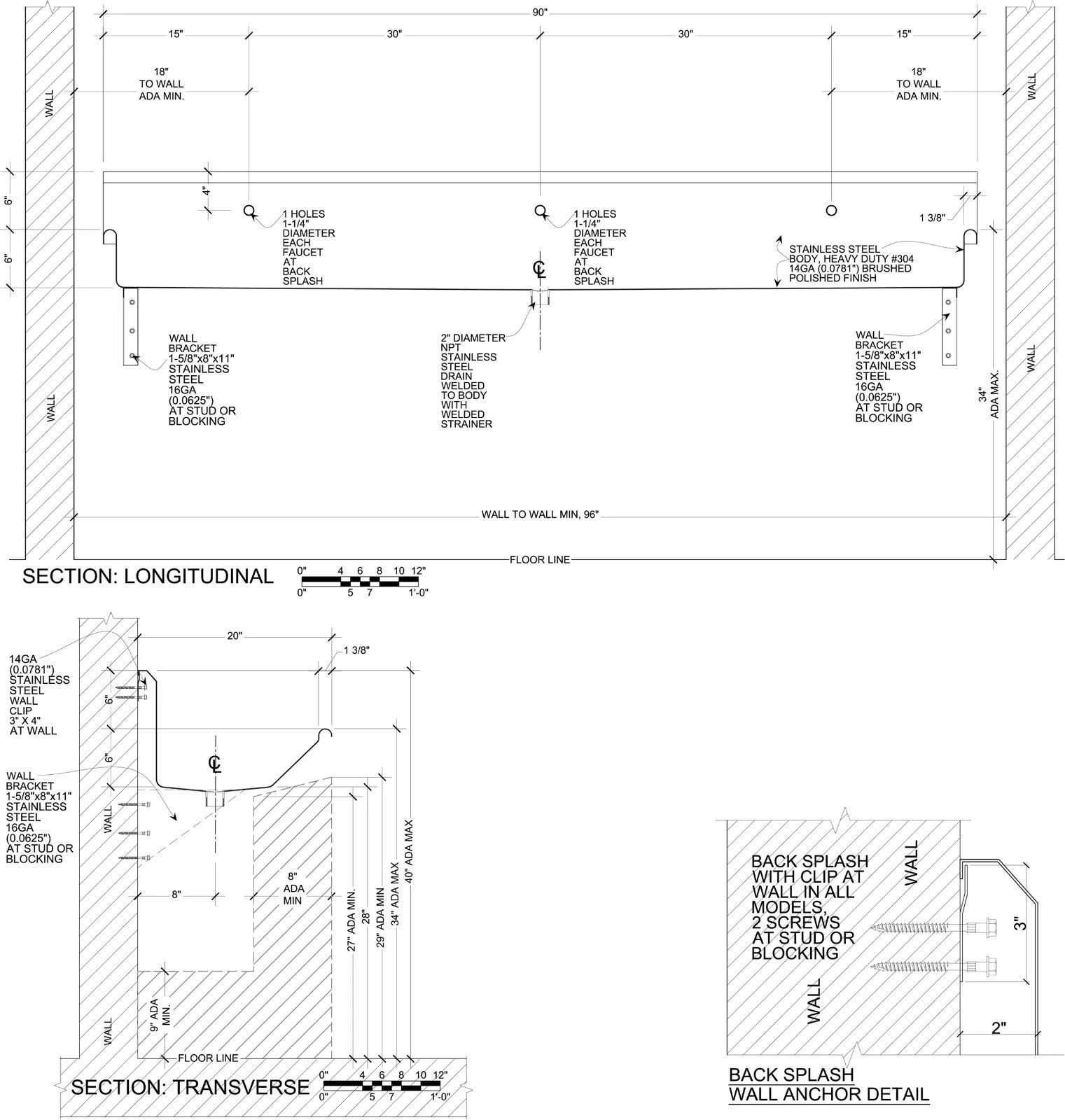
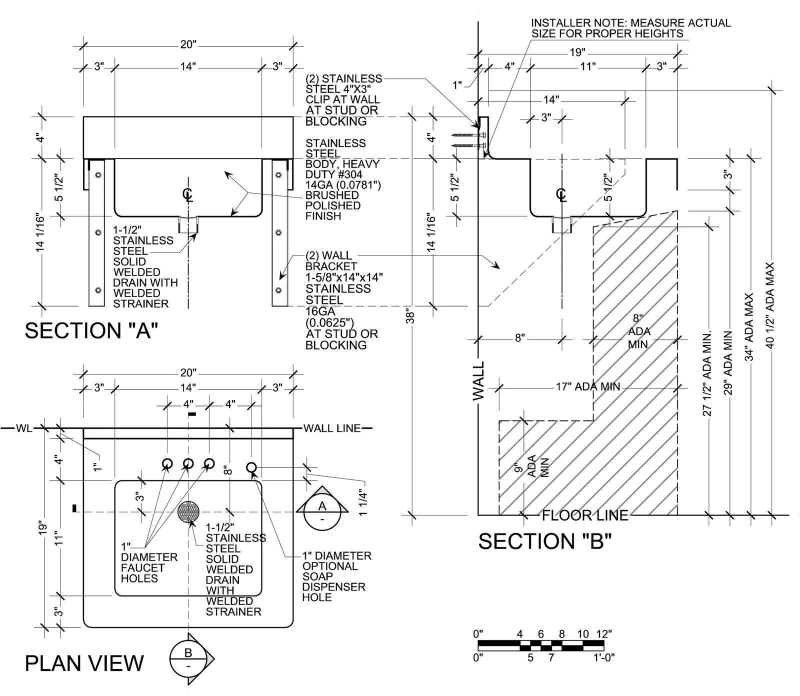
ADA SINK | Best Sheet Metal
$2,614.50
$784.35
$4,533.03
$1,359.91
$1,254.82
$376.45
$10,859.70
$3,257.91
$1,096.33
$1,107.10
$1,090.81
$327.24
$1,150.44
$1,213.44
$1,795.87
$538.76
$1,156.54
$346.96